רישום בית משותף – שאלות ותשובות
שירותי רישום בית משותף: תשריטים מדויקים, מדידות משלימות ותיקון רישום קיים. עבודה שוטפת מול טאבו, עורכי דין וגורמי רישום.
מהו רישום בית משותף?
רישום בית משותף הוא הליך משפטי ורישומי בלשכת רישום המקרקעין (טאבו), שבמסגרתו בניין הכולל מספר יחידות נפרדות – דירות, משרדים או חנויות – נרשם כך שכל יחידה מקבלת רישום עצמאי.
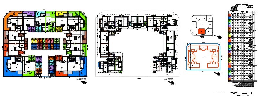
הרישום מבוסס על תשריט בית משותף, הקובע את גבולות הדירות, ההצמדות (כגון מחסן, חניה, גג) והחלק היחסי של כל יחידה ברכוש המשותף.
רישום מסודר הוא תנאי מהותי לוודאות קניינית, לביצוע עסקאות, לקבלת משכנתא ולהתנהלות תקינה מול רשויות, בנקים ומשרדי עורכי דין.
באילו מקרים נדרש רישום בית כבית משותף?
בניינים ישנים שטרם נרשמו כבית משותף
בבניינים רבים, בעיקר בניינים ותיקים, לא בוצע מעולם רישום בית משותף. במצב זה כל בעלי הדירות רשומים יחד בנסח הטאבו כבעלים של כלל הנכס (רישום במושע), ללא שיוך ברור של דירה מסוימת לבעליה וללא חלוקה רשמית של הרכוש המשותף.
למרות שניתן להעביר זכויות גם במצב זה, היעדר רישום פרטני יוצר קשיים משמעותיים:
קושי בקבלת משכנתא, חוסר ודאות בעסקאות מכר, בעיות ברישום ירושות ולעיתים גם מחלוקות בין בעלי הדירות.
רישום הבית כבית משותף מסדיר את הזכויות ומעניק זיהוי חד-משמעי לכל דירה.

בניינים הרשומים על שם חברה קבלנית או חברה בע״מ
במקרים מסוימים הבניין כולו רשום על שם חברה קבלנית או חברה בע״מ – בין אם מסיבות היסטוריות ובין אם משום שהחברה שהתחייבה לבצע את הרישום לא השלימה את התהליך.
במצב זה הדיירים מחזיקים לעיתים בזכויות חכירה או בזכויות חוזיות, אך אינם רשומים כבעלי הדירות בטאבו.
רישום בית משותף מאפשר, בכפוף לבדיקה משפטית ותכנונית, לרשום כל דירה על שם בעליה, להסדיר הצמדות ולהשלים את המעבר לרישום קנייני מלא.
טעויות ברישום הבית המשותף הקיים
לא אחת מתגלות טעויות בתשריט או בצו רישום הבית המשותף – כגון רישום דירות שלא בסדר הנכון, שיוך שגוי של הצמדות, או אי-התאמה בין הרישום לבין המצב בפועל בשטח.
במקרים אלו נדרש תיקון רישום בית משותף, ולעיתים אף ביטול צו רישום קיים והגשת בקשה חדשה.
טיפול מוקדם בטעויות אלו חיוני לפני ביצוע עסקאות, רישום משכנתאות או כל פעולה קניינית אחרת.
שינויים בדירות, תוספות בנייה והרחבות
בכל מקרה של תוספות בנייה, הרחבות דירה, סגירת מרפסות, פיצול או איחוד דירות – וכאשר השינויים אושרו בהיתר כדין – יש לעדכן את רישום הבית המשותף באמצעות תשריט מתוקן.
אי-התאמה בין הרישום למציאות עלולה ליצור בעיות משפטיות, עיכובים בעסקאות ואף חשיפה לתביעות. עדכון הרישום מבטיח התאמה מלאה בין המצב התכנוני, הפיזי והרישומי.

מי עוסק בהכנת תשריטים לרישום בית משותף?
הכנת תשריט לרישום בית משותף היא עבודה מקצועית המשלבת מדידה, שרטוט, הבנה תכנונית והיכרות עם דרישות לשכת רישום המקרקעין.
בריפאנד אנו מעניקים שירות מלא הכולל:
- הכנת תשריטים לרישום בית משותף
- השלמות מדידה במידת הצורך
- ליווי ועבודה שוטפת מול לשכות רישום המקרקעין
- תיאום מול משרדי עורכי דין, מודדים וגורמים מקצועיים נוספים
היתרון הוא בעבודה רציפה עם גורם אחד שמכיר את הנכס, החומר הקיים והדרישות הרגולטוריות – עד להשלמת הרישום.